唐山的城际铁路要开工了
唐山信息港 发表于:2016-11-15 18:58 复制链接 看图 发表新帖
阅读数:5183
近日,铁道第三勘察设计院发布了《新建北京至唐山城际铁路环境影响报告书全本公示》,报告公示显示,京唐城际铁路正线长148.74公里,全线设8座车站。同步配套建设大厂、唐山动车运用所。宝坻南站综合维修工区纳入本项目。总投资将达到425.69亿元。计划2016年12月底开工建设,总工期4年。
8656bfef16e33f36581a793eae4716bc.png
62c0f7eba1969e016472e0d3e4d57383.png

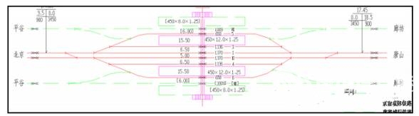
车站设置

1f2a1b1d33720c3dbca65d8ba7a4a19a.jpg

●北京城市副中心站全线车站中,最受关注的莫过于北京城市副中心站了。它是全线唯一一座地下站,位于北京市通州区潞城镇,六环路以西,芙蓉东路以东,北运河与运潮减河之间。所有动车在该站办理停靠或始发终到作业,车站规模按4台8线设计,设中间站台4座。●燕郊站燕郊站占地17.13公顷,位于河北省三河市燕郊镇经济技术开发区境内,将在既有老站基础上进行改建。
●大厂站大厂站为新建车站,位于河北省廊坊市大厂回族自治县境内,县城中心西北侧 7.5km,车站规模 2 台 4 线(含正线 2 条),大厂站占地10.47公顷。
●香河站京唐城际、环北京城际铁路在香河交汇车站位于河北省廊坊市香河县境内,站中心里程为 CK63+300,车站规模 4 台 8 线(含正线 2 条及远期廊密正线 2 条),香河站占地20.59公顷。
1de27e2892c35f440f9678e6928a6d3d.jpg

●宝坻南站宝坻南站为新建车站,位于天津市宝坻区南部马家店镇境内,车站规模 4 台 10 线(含正线 2 条及远期津承城际 2 台 4 线)。
●鸦鸿桥站鸦鸿桥站为新建车站,车站位于河北省唐山市玉田县窝洛沽镇境内。
●唐山站唐山站将在既有老站基础上进行改建,既有唐山站为津秦客专与津山铁路的交汇点,车站为高、普速分场共站设置,自东向西依次为高速车场、普速(城际)车场,其中城际与普速共场。高速车场规模为 3台 7 线(含正线 2 条);普速场津山线贯通,津秦客专引入时,普速场已按京唐城际引入一次建设到位,并在车站北端设置尽头线供京唐城际实施时接轨,普速场规模为 4台 9 线(含正线 2 条),设无站台柱雨棚,旅客进出站的地下通廊及高架候车室。


3beb221ad7255d00a35ffea88cd73e28.jpg
返回列表 使用道具 举报
条评论
您需要登录后才可以回帖 登录 | 立即注册
相关推荐
©2001-2021 唐山信息港 http://www.tsxxg.com冀ICP备2026004523号
首页联系我们客服微信:14369595Comsenz Inc.