唐山海关要在市中心区建这些项目!地点就在这个小区里!
唐山信息港 发表于:2018-12-14 06:56 复制链接 看图 发表新帖
阅读数:5828
5e8a99292f3853b617b62e9ea39a301e.jpg
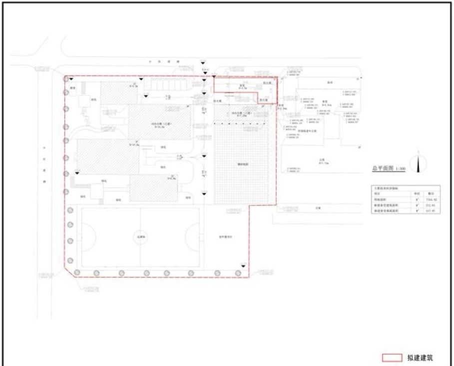
12月11日,据唐山市城乡规划局网站消息,唐山海关附属用房等建设项目现正批前公示,该项目建设地点位于路南区双新里小区内。
详情如下:↓↓↓      

1d58360f5db476c7edb63d5f2129527f.jpg

55640e6a7199010e5586f572e3174161.jpg

编号:唐规路南批前公示第[2018]017号

我局已依法对唐山海关罚没仓库、单身集体宿舍等附属用房项目——食堂项目建设工程设计方案(修建性详细规划)进行审查,相关技术指标符合国家规范标准要求。依据《唐山市城乡规划条例》第五十三条规定,现将有关情况予以公示。公示期间,相关利害关系人可将对该项目建设工程设计方案(修建性详细规划)的意见和建议反馈至唐山市城乡规划局,利害关系人享有要求举行听证的权利。

联系电话:0315-2819635

来源:环渤海新闻网

返回列表 使用道具 举报
条评论
您需要登录后才可以回帖 登录 | 立即注册
相关推荐
©2001-2021 唐山信息港 http://www.tsxxg.com冀ICP备2026004523号
首页联系我们客服微信:14369595Comsenz Inc.