正在公示!唐山中心区这片棚户区要这样改造
唐山信息港 发表于:2019-1-20 02:13 复制链接 看图 发表新帖
阅读数:6767
1月16日,唐山市城乡规划局网站发布了唐山路北区城中村马驹桥(北片区)棚户区改造和唐山路北区城中村马驹桥(南片区)棚户区改造的批前公示,详情如下
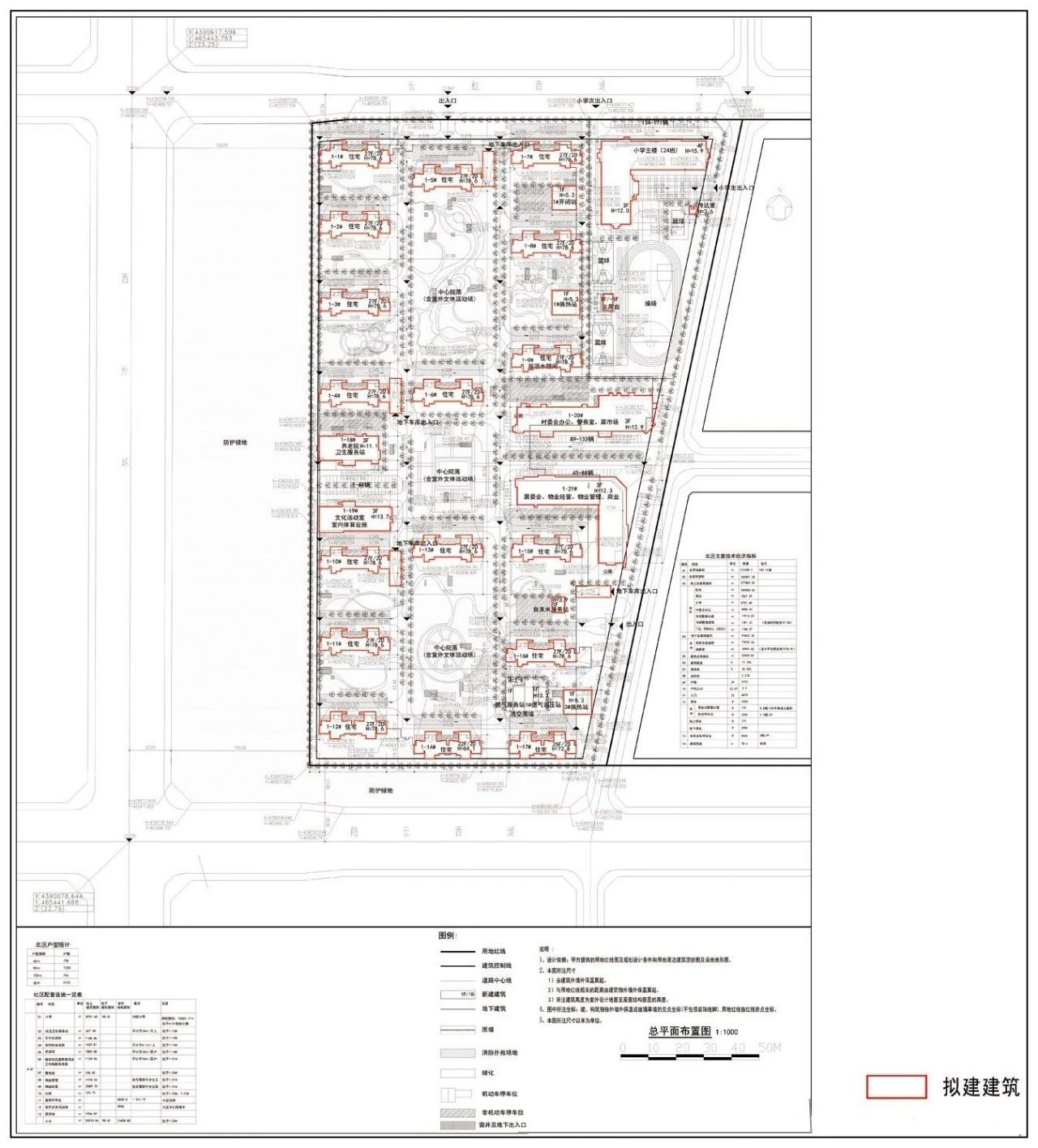
唐山路北区城中村马驹桥(北片区)棚户区改造
项目位置:路北区西外环以东、翔云道以北、长虹道以南
总建筑面积:369691.18㎡,其中地上建筑面积为277869.00㎡,地下建筑面积为91822.18㎡
建设层数:27层
建设高度:78.6米

1eb6b445563d1735dbef7e06a1ea367c.jpg

e8feec497e9fe8c871962d6ed58ea0cd.jpg

0d9e1d3d80a656f3afa2260e7289525b.jpg

1a388a99b53c0bf006e7e0947f780628.jpg


唐山路北区城中村马驹桥(南片区)棚户区改造
项目位置:路北区竹安路以西、翔云道以北、长虹道以南
总建筑面积:319862.41㎡,其中地上建筑面积为243734.59㎡,地下建筑面积为76127.82㎡
建设层数:27层
建设高度:78.6米

31d1ad8261fc95746ef7447cab3d6b15.jpg

732b8a3149b44a5c67b7f58f9e028300.jpg

1799d59ea156519ea096338590295567.jpg

d38dfca58b9dbe870d83e0756905a104.jpg

来源:唐山市城乡规划局网站、唐山晚报               
返回列表 使用道具 举报
条评论
您需要登录后才可以回帖 登录 | 立即注册
相关推荐
©2001-2021 唐山信息港 http://www.tsxxg.com冀ICP备2026004523号
首页联系我们客服微信:14369595Comsenz Inc.