唐山市城乡规划!中心区这个地块有变!
唐山信息港 发表于:2019-1-23 06:56 复制链接 看图 发表新帖
阅读数:6175
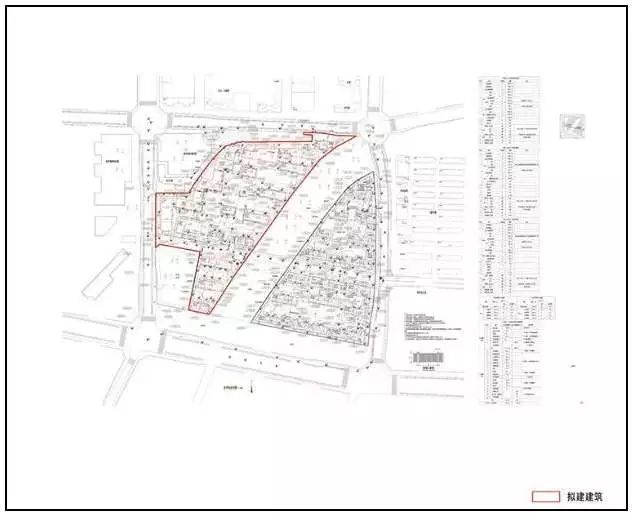
1月22日,唐山市城乡规划局网站发布了文化路南延段以东、南新道以北A-01地块方案变更公示。公示显示,该工程的总建筑面积(包括地上建筑面积和地下建筑面积)、建设层数、建设高度等发生变更。总建筑面积从184187.01平方米减少到178003.66平方米,建设层数由20层变为18层,建设高度从59.5米降至54.3米。

详情如下
唐山文化路南延段以东、南新道以北A-01地块方案变更公示



02cd7f63ff645d7c35277a1c065510f4.jpg

c16cf7098ecf81d6858954f86940e733.jpg

c0262b9679c36835ff8bec9b22b77752.jpg

相关新闻
2018年5月25日,唐山市城乡规划局网站发布了文化路南延段以东、南新道以北A-01地块项目批前公示,原公示内容如下

文化路南延段以东、南新道以北A-01地块项目批前公示



a62c18a9939180b625e818eed4f2ca17.jpg

febcd4cca4f30f298614cab336c8c2ba.jpg

6e666bddc8a612e9b7d03f0871b31214.jpg
返回列表 使用道具 举报
条评论
您需要登录后才可以回帖 登录 | 立即注册
相关推荐
©2001-2021 唐山信息港 http://www.tsxxg.com冀ICP备2026004523号
首页联系我们客服微信:14369595Comsenz Inc.