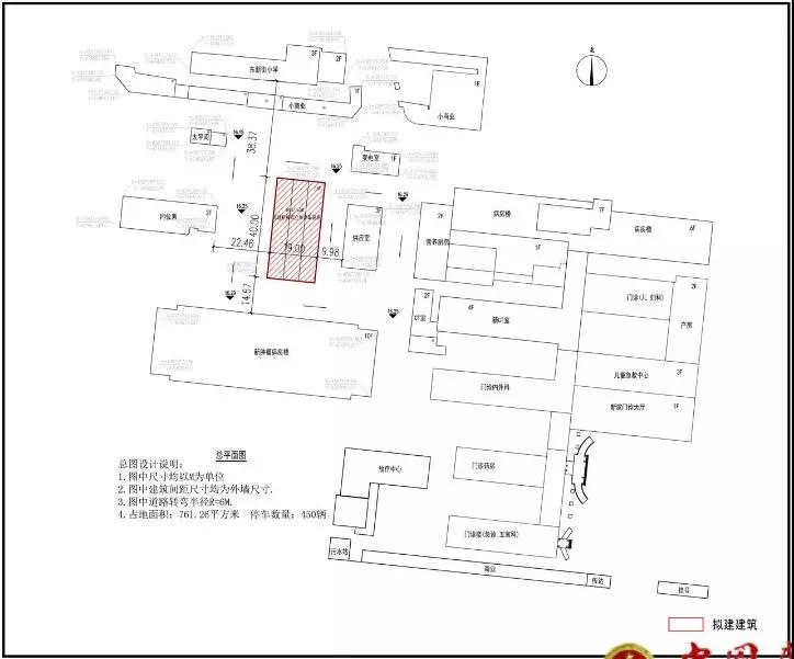
唐山市人民医院机械式立体停车设施 批前公示
唐山信息港 发表于:2020-3-8 19:19 复制链接 看图 发表新帖
阅读数:3668
唐山市人民医院机械式立体停车设施
批前公示
编号:唐资规路南批前公示第[2020]0002号
我局已依法对唐山市人民医院机械式立体停车设施建设工程设计方案(修建性详细规划)进行审查,相关技术指标符合国家规范标准要求。依据《唐山市城乡规划条例》第五十三条规定,现将有关情况予以公示。公示期间,相关利害关系人可将对该项目建设工程设计方案(修建性详细规划)的意见和建议反馈至唐山市自然资源和规划局,利害关系人享有要求举行听证的权利。联系电话:0315-5263026
网址:http://lunan.tangshan.gov.cn 20200308192432.jpg
20200308192626.jpg
返回列表 使用道具 举报
条评论
您需要登录后才可以回帖 登录 | 立即注册
相关推荐
©2001-2021 唐山信息港 http://www.tsxxg.com冀ICP备2026004523号
首页联系我们客服微信:14369595Comsenz Inc.