遵化又将新增一条从遵化城区直达旅游景区的旅游公路
唐山信息港 发表于:2020-3-24 16:26 复制链接 看图 发表新帖
阅读数:4217
城市的发展离不开交通
发达的交通路网是城市跳动的脉搏
更是城市发展的原动力
遵化又将新增一条从遵化城区直达旅游景区的旅游公路
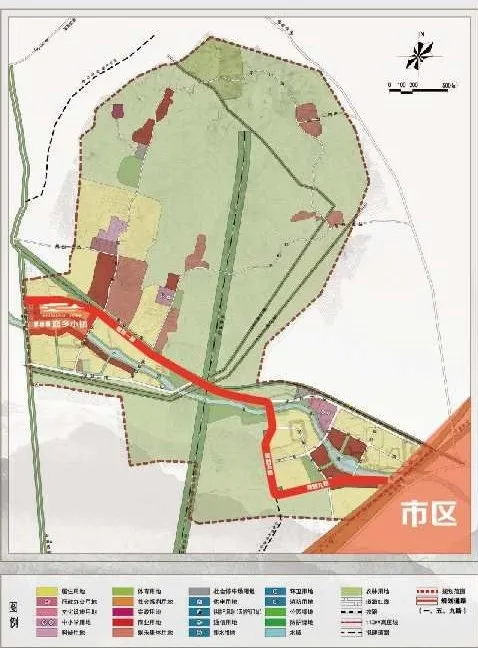
它就是碧桂园·恋乡小镇直达遵化城区的
规划“一五九”路
啥?
“一五九”是啥?
规划一路即碧桂园·恋乡小镇通向市区的路
  方便小镇与城市的连接
  规划五路和规划九路即区域内的路
  方便各村镇间的联系
12184469_982638.png
  规划“一五九”路
  2019年12月13日正式启动
  道路总长4.2公里
  项目一期——规划一路已完成建设1.2公里
  24米宽,双向4车道
  设计时速每小时60-80公里
  妥妥的国家二级公路标准
  今年10月1日期间全线通车
  届时,市区到恋乡小镇的路程将缩短到5-8分钟
12184470_687039.png
规划“一五九”路通车后
看得见的将不仅仅是路程的缩短
也将推进乡村农业生产、旅游资源开发利用
促进全市乡村振兴战略、文旅融合发展
12184471_240220.png

12184472_946622.png
返回列表 使用道具 举报
条评论
您需要登录后才可以回帖 登录 | 立即注册
相关推荐
©2001-2021 唐山信息港 http://www.tsxxg.com冀ICP备2026004523号
首页联系我们客服微信:14369595Comsenz Inc.