唐山交大园西南交大研究生院项目批前公示
唐山信息港 发表于:2020-9-28 22:39 复制链接 看图 发表新帖
阅读数:3204
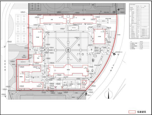
  9月27日,中国唐山网站发布《唐山交大园西南交大研究生院项目批前公示》,公示显示,该项目位于风井东路东侧、大学路西北侧,总建筑面积43607.47平方米,建设层数6层,建设高度23.86米,详情如下:
建设项目规划公示
12228517_897289.png
12228516_113345.png
12228515_774807.png
返回列表 使用道具 举报
条评论
您需要登录后才可以回帖 登录 | 立即注册
相关推荐
©2001-2021 唐山信息港 http://www.tsxxg.com冀ICP备2026004523号
首页联系我们客服微信:14369595Comsenz Inc.