唐山市路南区公布金属小白楼区域改造
唐山信息港 发表于:2020-10-5 18:11 复制链接 看图 发表新帖
阅读数:3963
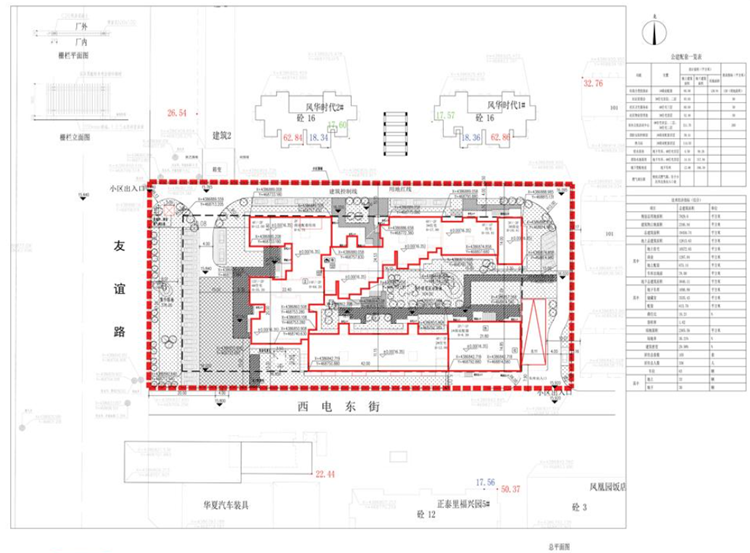
  日前,路南区人民政府发布《唐山市金属小白楼区域改造批后公布》,内容涉及项目建筑面积、层数、高度等。详情如下:
  建设项目名称:唐山市金属小白楼区域改造
  建设位置:南新道南侧,西电路东侧,风华时代小区南侧
  总建筑面积:18459.74平方米
  地上建筑面积:12613.63平方米
  地下建筑面积:5846.11平方米
  建筑层数:14层
  建筑高度:44.20米
12229612_297665.png
12229613_642497.png
12229614_991951.png
返回列表 使用道具 举报
条评论
您需要登录后才可以回帖 登录 | 立即注册
相关推荐
©2001-2021 唐山信息港 http://www.tsxxg.com冀ICP备2026004523号
首页联系我们客服微信:14369595Comsenz Inc.