学院路东侧俩地块建设住宅规划公示
唐山信息港 发表于:2020-10-5 18:19 复制链接 看图 发表新帖
阅读数:3827
学院路东侧、创新北道南侧地块建设项目规划公示
  建设项目名称:唐山高新区学院路东侧、创新北道南侧地块项目
  建设项目位置:学院路东侧、创新北道南侧
  总建筑面积:107228.66平方米,地上建筑面积:81784.68平方米,地下建筑面积:25443.98平方米
  建设层数:18层
  建设高度:53.2米
建设项目规划公示
12229957_769104.jpg
12229958_122254.jpg

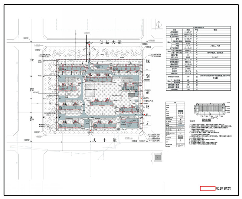
学院路东侧、庆丰道北侧地块建设项目规划公示
  建设项目名称:唐山高新区学院路东侧、庆丰道北侧地块项目
  建设项目位置:唐山市高新区学院路东侧、庆丰道北侧
  总建筑面积:113017.59平方米,地上建筑面积:86571.68平方米,地下建筑面积:26445.92平方米
  建设层数:18层
  建设高度:53.2米
建设项目规划公示
12229961_019029.jpg
12229962_831036.jpg
返回列表 使用道具 举报
条评论
您需要登录后才可以回帖 登录 | 立即注册
相关推荐
©2001-2021 唐山信息港 http://www.tsxxg.com冀ICP备2026004523号
首页联系我们客服微信:14369595Comsenz Inc.