唐山工人医院(一期项目)规划公示
唐山信息港 发表于:2022-5-17 19:16 复制链接 看图 发表新帖
阅读数:4216

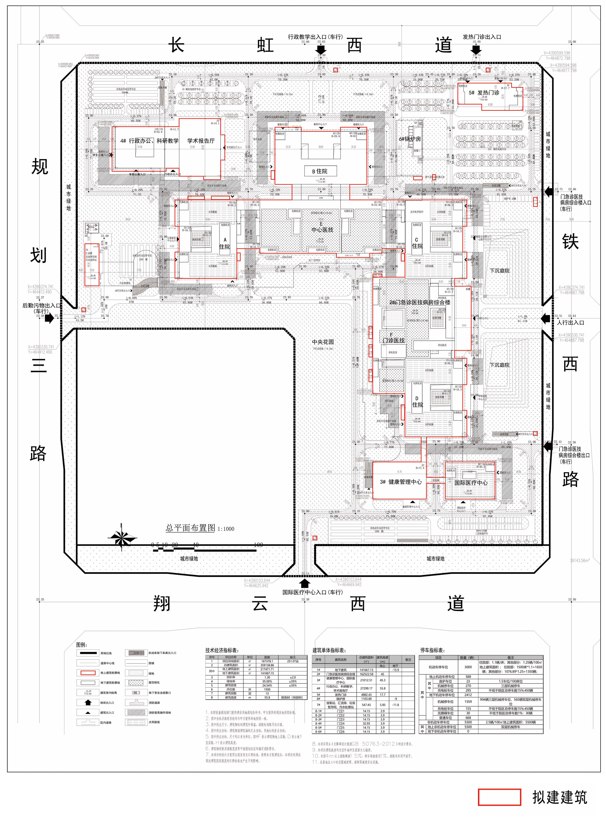
5月17日,中国唐山网站发布了《唐山工人医院(一期项目)批前公示》,详情如下:

唐山工人医院(一期项目)批前公示

50105048_ac3ff4b2-ebcc-4f3e-bb54-be92325753cccopy.jpg

50105048_634f5bd9-35e3-4550-9700-9688919d2f75copy.jpg

50105048_10aa6200-63aa-492a-8cf8-683b43de5a31copy.jpg

返回列表 使用道具 举报
条评论
您需要登录后才可以回帖 登录 | 立即注册
相关推荐
©2001-2021 唐山信息港 http://www.tsxxg.com冀ICP备2026004523号
首页联系我们客服微信:14369595Comsenz Inc.