唐山市自来水公司净水厂二期改扩建
唐山信息港 发表于:2022-7-28 17:26 复制链接 看图 发表新帖
阅读数:4894

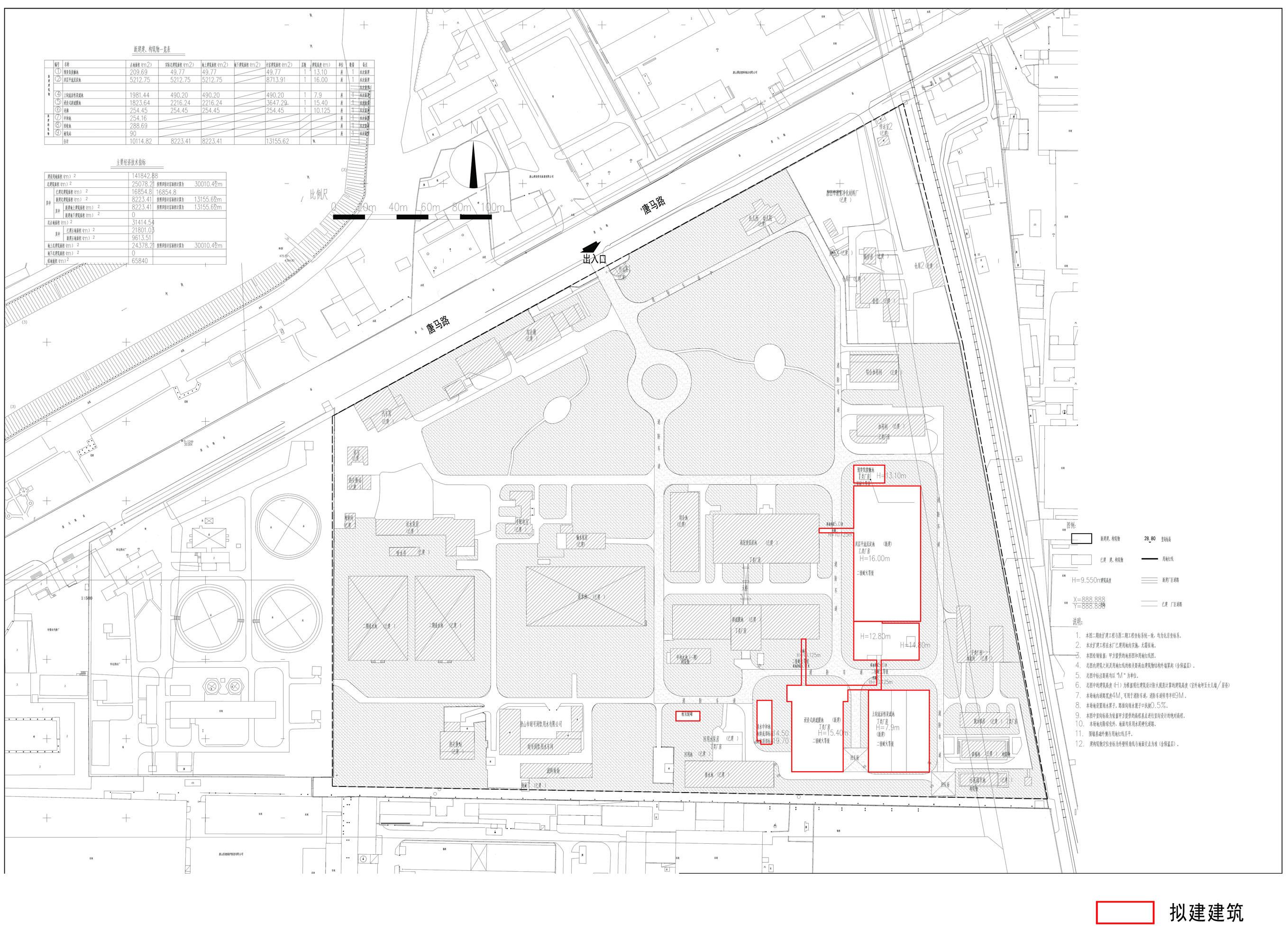
7月28日,中国唐山网站发布了《建设项目规划公示(唐山市自来水公司净水厂二期改扩建工程)》,详情如下:

50114184_4183517c-6599-41ff-b7f8-e2a4d954a15acopy.jpg

50114184_a039256c-10fb-412a-b970-96f6dd0862d9copy.jpg


返回列表 使用道具 举报
条评论
您需要登录后才可以回帖 登录 | 立即注册
相关推荐
©2001-2021 唐山信息港 http://www.tsxxg.com冀ICP备2026004523号
首页联系我们客服微信:14369595Comsenz Inc.