路南区大里路西福兴道北则顺歆颐大厦项目批前公示
唐山信息港 发表于:2022-9-2 09:06 复制链接 看图 发表新帖
阅读数:7603

9月1日,中国唐山网站发布了《顺歆颐大厦项目批前公示》,详情如下:

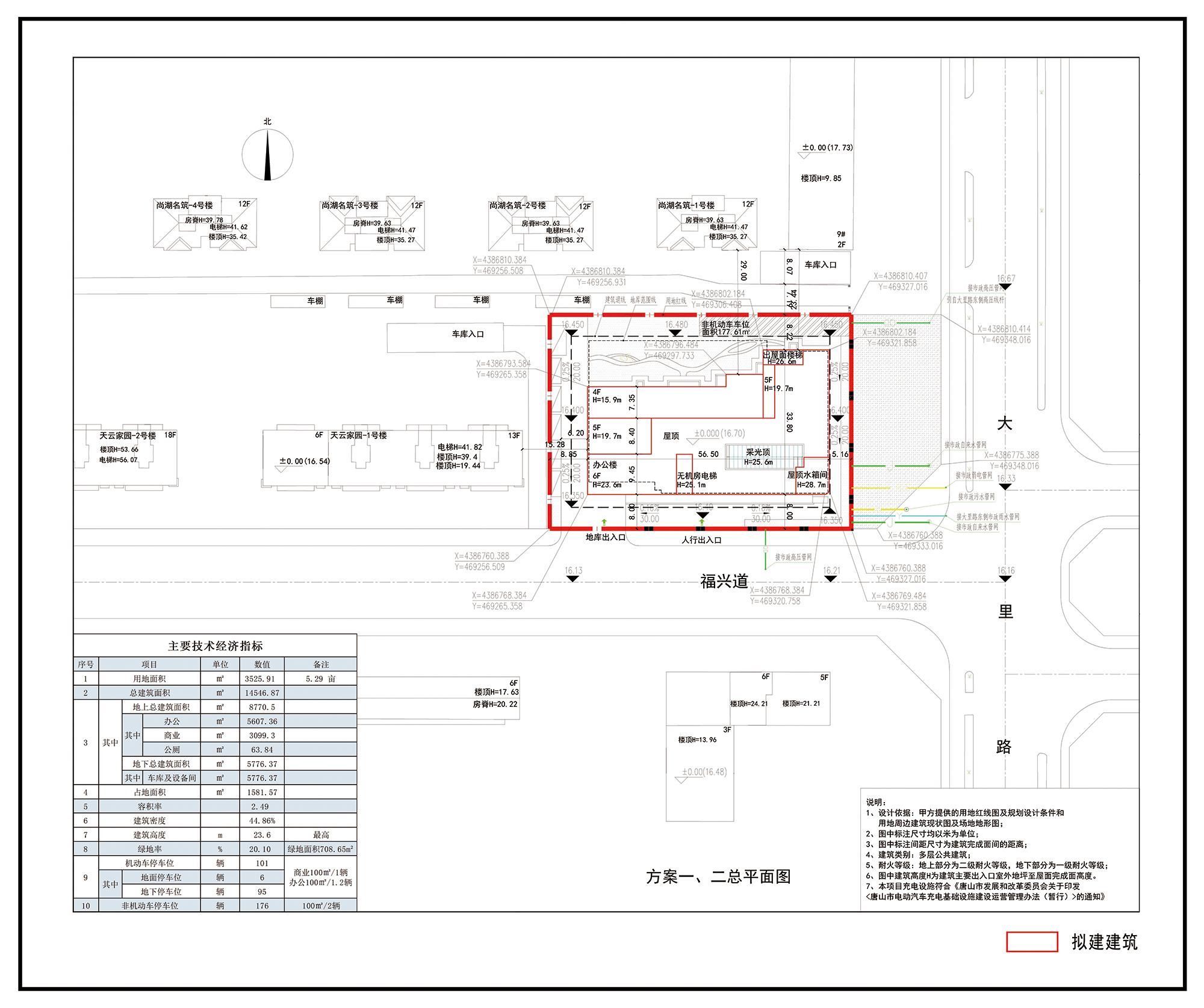
顺歆颐大厦项目批前公示

50121152_6932aec7-71e6-4118-8a2b-69850533cd73copy.jpg

50121152_62c745bf-ff91-40f6-8094-0b3e36432e3ccopy.jpg

50121152_53949f5d-c822-46c4-a04b-adc5dffb8010copy.jpg

来源: 中国唐山
返回列表 使用道具 举报
条评论
您需要登录后才可以回帖 登录 | 立即注册
相关推荐
©2001-2021 唐山信息港 http://www.tsxxg.com冀ICP备2026004523号
首页联系我们客服微信:14369595Comsenz Inc.