路南区城南经济开发区公示10层建筑
唐山信息港 发表于:2023-4-1 21:14 复制链接 看图 发表新帖
阅读数:5634
b19f2c4c68b6da56aedad47fdfae0662.png
9a3e43c1ab6a769929e856f8e8036f85.png
a3fcc5b14077f77fce4e44e07d904e83.png
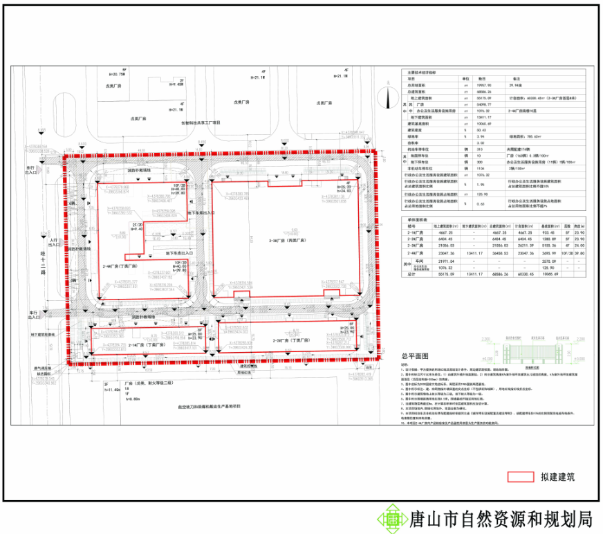
建设项目名称:城南经济开发区配套基础设施建设项目(配套服务设施工程)
建设规模:总建筑面积:68586.26㎡
地下建筑面积:13411.17㎡
建设高度:40米
公示时间:2023年3月31日-2023年4月9日
来源:路南区人民政府官网
返回列表 使用道具 举报
条评论
您需要登录后才可以回帖 登录 | 立即注册
相关推荐
©2001-2021 唐山信息港 http://www.tsxxg.com冀ICP备2026004523号
首页联系我们客服微信:14369595Comsenz Inc.