路南区刘营庄区域城中村改造回迁
唐山信息港 发表于:2023-6-12 18:04 复制链接 看图 发表新帖
阅读数:6191
路南区刘营庄区域城中村改造回迁区项目公示

近日,中国唐山网站发布了《刘营庄区域城中村改造回迁区项目地块进行设计方案批前公示》《刘营庄区域城中村改造回迁区项目地块进行设计方案批前公示修规公示》《刘营庄区域城中村改造回迁区项目设计方案批前公示效果图、户型公示》,详情如下:

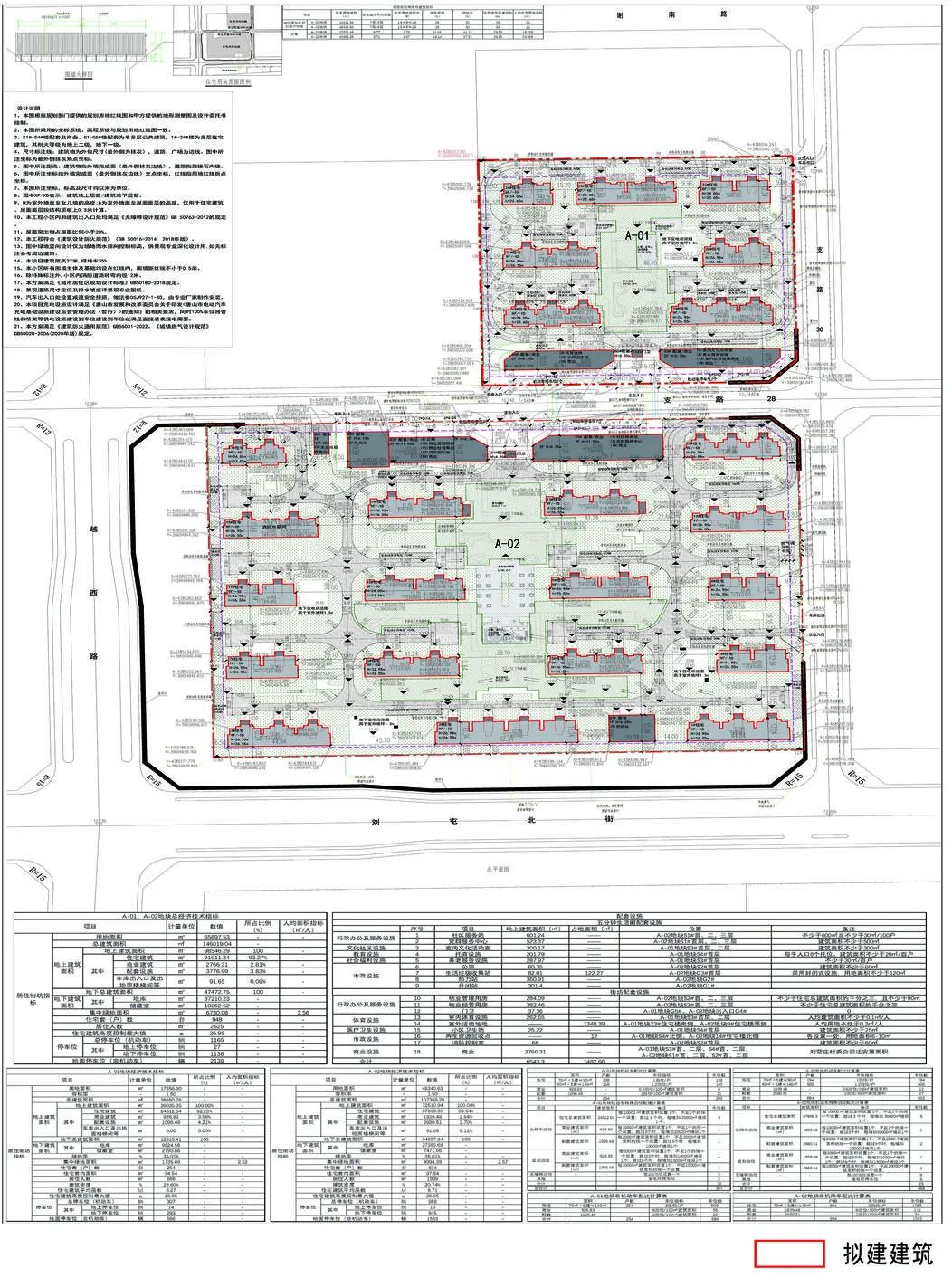
刘营庄区域城中村改造回迁区项目地块进行设计方案批前公示
a3965889531c30d6540873c12b17f6ff.jpg
779cadad8be5a2fe26929fc18331fd88.jpg
刘营庄区域城中村改造回迁区项目地块进行设计方案批前公示修规公示

fd5ef84925d2d2e1bf1d019aac0cc331.jpg

1f64df03fea3efd03e996a7acebe72a8.jpg

7692103b694c637e8cff2c9179dd6123.jpg

b13dcefcf46ccc48e7fcd6635978f72d.jpg

刘营庄区域城中村改造回迁区项目设计方案批前公示效果图、户型公示

ec3d97a8fe318812f061b83520d4a80f.jpg

0cd46c626226379daff1174e06a1b95e.jpg

57205b32530a63ed7f5a8dfdcc0bd9c5.jpg

7c15faea88d341dc448d5c30ffa25614.jpg

aff1da44eb1ce618c6e37e321a019d61.jpg

3af1d9246dc8d69aa74526981100e88b.jpg

来源:路南区人民政府

返回列表 使用道具 举报
条评论
您需要登录后才可以回帖 登录 | 立即注册
相关推荐
©2001-2021 唐山信息港 http://www.tsxxg.com冀ICP备2026004523号
首页联系我们客服微信:14369595Comsenz Inc.