城南九中分校项目设计方案公示!
唐山信息港 发表于:2023-9-11 06:51 复制链接 看图 发表新帖
阅读数:5985
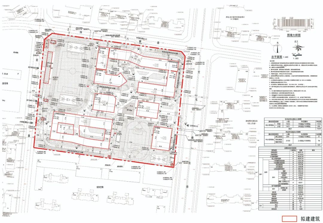
城南九中分校项目设计方案批前公示
a57375d271726ac5bcdcab2d532c6cad.jpg
1af0f699bc9b1df751e637dc11f5b4c4.jpg
来源:中国唐山
返回列表 使用道具 举报
条评论
您需要登录后才可以回帖 登录 | 立即注册
相关推荐
©2001-2021 唐山信息港 http://www.tsxxg.com冀ICP备2026004523号
首页联系我们客服微信:14369595Comsenz Inc.