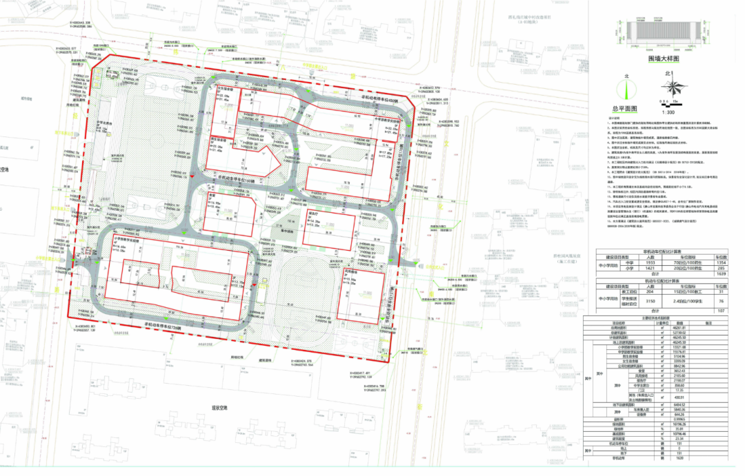
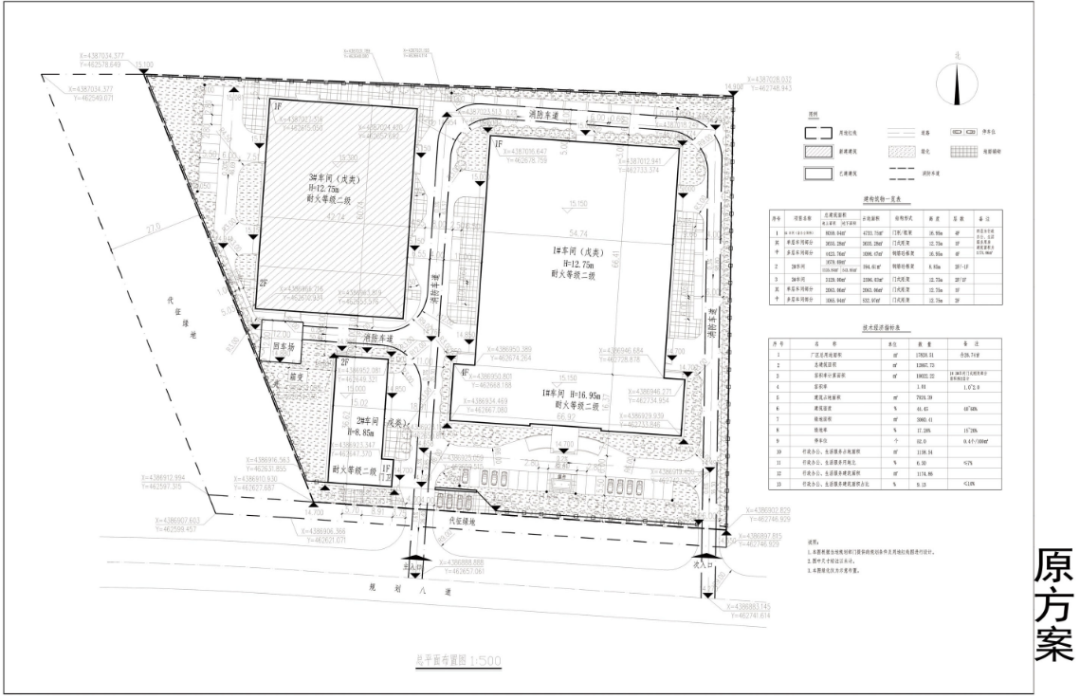
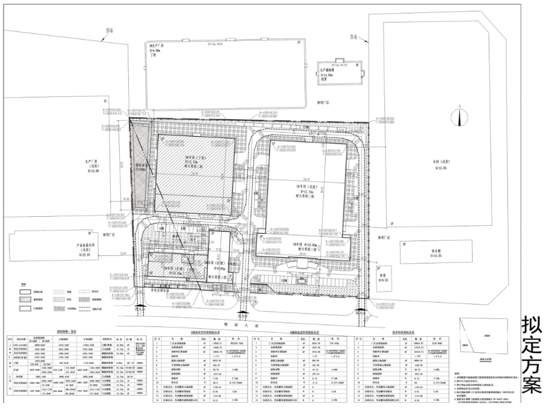
关于城南九中、金维电梯建设
唐山信息港 发表于:2024-4-2 23:18 复制链接 看图 发表新帖
阅读数:7462
0e1df0de9a8205435fdb8c99078be0d9.png
9081c7e78bf7b6994416c5eab4451c8e.png
1023b41d81d99e576d627960a67e57af.png
848aae14c3550a0b1937466287bdc6bf.png
b81b8476581d783e84738f5cde4860ad.png
d367e458ba579a83031429a8dada024b.png
返回列表 使用道具 举报
条评论
您需要登录后才可以回帖 登录 | 立即注册
相关推荐
©2001-2021 唐山信息港 http://www.tsxxg.com冀ICP备2026004523号
首页联系我们客服微信:14369595Comsenz Inc.