唐山将建设大学生创业园
唐山信息港 发表于:2024-12-5 23:11 复制链接 看图 发表新帖
阅读数:15932
12月5日,路南区人民政府最新公示
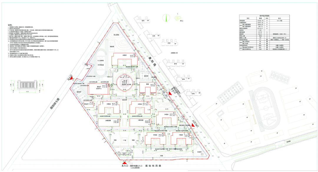
涉及华北理工大学轻工学院
产研学基地暨大学生创新创业示范园
0a9d9e6000616f1769db26615f3b4337.png

ac64d376ba9412843872e54514959562.png
9b664da727b0deeeb4bbd169de3e39eb.png
39b3e1a1e39377eb89277791461340e7.png
来源:中国唐山
返回列表 使用道具 举报
条评论
您需要登录后才可以回帖 登录 | 立即注册
相关推荐
©2001-2021 唐山信息港 http://www.tsxxg.com冀ICP备2026004523号
首页联系我们客服微信:14369595Comsenz Inc.