唐山市中心区天华苑项目规划公示
唐山信息港 发表于:2025-1-25 22:40 复制链接 看图 发表新帖
阅读数:9848
       近日,唐山市自然资源和规划局发布《建设项目规划公示(天华苑项目)》
19394b58e548586b2dc27eccca238cbd.jpg
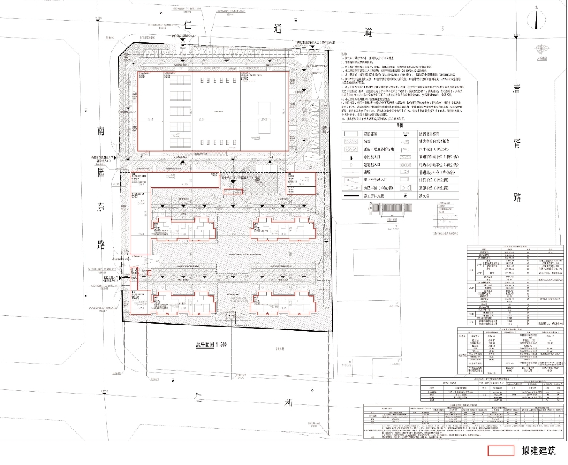
       建设位置:唐山市路北区仁和道北侧、唐胥路西侧、南园东路东侧、仁通道南侧区域
       建设规模:总建筑面积86298.19㎡;地上建筑面积62280.58㎡;地下建筑面积24017.61㎡
       建设层数:16层建设高度:52.5米
a931efbe0519016ea1c58bd1481976aa.png
来源:唐山自然资源和规划局
返回列表 使用道具 举报
条评论
您需要登录后才可以回帖 登录 | 立即注册
相关推荐
©2001-2021 唐山信息港 http://www.tsxxg.com冀ICP备2026004523号
首页联系我们客服微信:14369595Comsenz Inc.