唐山文旅颐唐养老服务中心规划公示
唐山信息港 发表于:2025-11-6 22:11 复制链接 看图 发表新帖
阅读数:3777
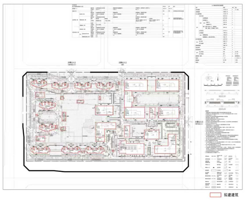
近日,唐山市自然资源和规划局发布唐山文旅颐唐养老服务中心项目规划公示。
1.png
2.png
返回列表 使用道具 举报
条评论
您需要登录后才可以回帖 登录 | 立即注册
相关推荐
©2001-2021 唐山信息港 http://www.tsxxg.com冀ICP备2026004523号
首页联系我们客服微信:14369595Comsenz Inc.