1月至今唐山的这些住房项目规划公示汇总
唐山信息港 发表于:2018-2-13 21:49 复制链接 看图 发表新帖
阅读数:4094
金岸·红堡(A-03地块)批前公示

9a951b2d78430a0d45ae620a92f0cb94.jpg

21fb76b5d8f1429db65a6aff9820034b.jpg

左岸·景林C区方案变更

a7a1ed72ca3dff864b5b293d47fd2cfc.jpg

f67f9cdfcb902f1eb61df603da935c37.jpg
唐山市高新区付家屯平改楼工程

cce5468ab14cfbbcf0057206b6234bb4.jpg

91fd5a0405bc1f97bc285700c2142df3.jpg
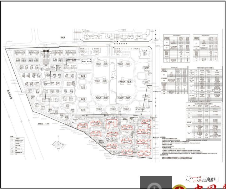
唐山万科凤凰新城居住项目A-01地块三期 (A-17-B#、BS-3#、A-18E#、A-18G#)

f96498ed817e24f0db248e54cf98e032.jpg

4dd90ed8422cce2d2451d26d2848b4dc.jpg
唐山大恒房地产开发有限公司批前公示

018445a6b563d7900a95377f243d4d03.jpg

054066de068408a36fe9692be70836e9.jpg
唐山富力十号

794b15b7d7270d799abd162789cbc628.jpg

e1bc49d8f9a350c6def4425f3144873b.jpg
唐山市丰润区建源房地产开发有限公司富景园住宅小区项目优化后的设计方案公示

唐山市丰润区建源房地产开发有限公司富景园住宅小区项目,位于唐山市丰润区南部,东临唐丰路,南邻恒益馨苑小区,西邻丰顺路。项目占地面积19510.04平方米(合29.27亩)。
6b16ce8b498b94b065fe024e2dedbac8.jpg
2018年1月30日唐山市城乡规划局通过了该项目优化后的设计方案,现进行公示。
3b068bf5217ce911440fa668d7a8694c.jpg
优化的设计方案总建筑面积66440.75㎡(其中,地上总建筑面积47889.25㎡,地下总建筑面积18551.50㎡),容积率2.46,建筑密度21.42%,绿地率35.1%,总户数442户。配建:物业管理办公用房151.86平方米,居委会203.47平方米,物业管理经营用房195.66平方米,社区服务中心163.12平方米,社区卫生服务中心122.55平方米,室内文化活动中心501.05平方米,治安联防站19.95平方米,换热站186.32平方米,公厕62.78平方米,垃圾转运站102.47平方米。
c8402eee80fa5d82064ec97022c1ea59.jpg

b640e906ac36aa85f888e0ee05f6a89c.jpg

来源:乐居唐山
返回列表 使用道具 举报
条评论
您需要登录后才可以回帖 登录 | 立即注册
相关推荐
©2001-2021 唐山信息港 http://www.tsxxg.com冀ICP备2026004523号
首页联系我们客服微信:14369595Comsenz Inc.